Oferty

Home / Oferty

Oferty


Cena 820 120 PLN
Cena 820 120 PLN
Cena 820 120 PLN
Powierzchnia 81
Powierzchnia 81
Pow. 81

Nr oferty W001481

Liczba pokoi 4

Piętro / Liczba pięter 1 /3

Cena za m² 10100.00


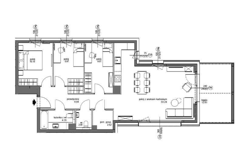
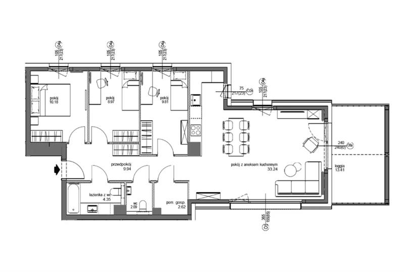
Na sprzedaż przestronne mieszkanie 4-pokojowe w Pruszczu Gdańskim

Na sprzedaż nowe, 4-pokojowe mieszkanie o powierzchni 81,20 m², położone w nowoczesnym budynku w Pruszczu Gdańskim.
Lokal znajduje się na
pierwszym piętrze i jest w stanie deweloperskim – gotowy do odbioru, co daje możliwość wykończenia wnętrza dokładnie według własnych upodobań.


Układ pomieszczeń:

  • jasny salon z aneksem kuchennym,
  • trzy sypialnie,
  • łazienka,
  • oddzielne WC,
  • przedpokój z miejscem na zabudowę.

Z salonu prowadzi wyjście na balkon, idealny na poranną kawę lub odpoczynek po pracy.

Strony świata: północ – południe – wschód

Dzięki trójstronnej ekspozycji mieszkanie jest doskonale doświetlone przez cały dzień, a układ pomieszczeń zapewnia komfort i poczucie przestrzeni.


 Dodatkowe informacje:

  • możliwość zakupu miejsca postojowego na terenie inwestycji,
  • nowoczesny budynek z estetyczną architekturą,
  • spokojne, przyjazne sąsiedztwo.


 Lokalizacja – Pruszcz Gdański

To doskonała propozycja dla osób, które chcą mieszkać blisko Gdańska, a jednocześnie cenią sobie ciszę, bezpieczeństwo i wygodę.
W pobliżu znajdują się:

  • sklepy, szkoły, przedszkola i punkty usługowe,
  • przystanki autobusowe i szybki dojazd do obwodnicy,
  • liczne tereny spacerowe i rekreacyjne.

Zapraszam do kontaktu oraz na prezentacje

Zdjęcia w ofercie to wizualizacje przedstawiające przykładowe wykończenie mieszkania i mają jedynie charakter poglądowy

Szczegóły

Ogólne warunki
Rynek: Pierwotny
Cena: 820 120 PLN
Pow. całkowita: 81.20 m²
Cena za m²: 10 100 PLN
Liczba pokoi: 4
Piętro: 1
Liczba pięter: 3
Opis budynku
Rodzaj budynku: Blok mieszkalny
Stan budynku: Deweloperski
Bezpieczeństwo
Standard
Rodzaj ogrzewania: C.o. miejskie
Balkon: Loggia 13.41 m²
Internet: ---
Winda: Tak
Liczba poziomów: 1
Piwnica: ---
Pomieszczenia
Kuchnia: Aneks kuchenny
Liczba łazienek: 1
Parking/Garaż
Garaż: Przy budynku

Kalkulator opłat

Prowizja biura (brutto)
%
Opłaty notarialne
Opłata za wypisy aktu: 6,00 PLN za 1 stronę + 23% VAT

Agent

Wioletta Sąsiedzka

536916597
biuro@wmoris.pl