Oferty

Home / Oferty

Oferty


Cena 744 355 PLN
Cena 744 355 PLN
Cena 744 355 PLN
Powierzchnia 75
Powierzchnia 75
Pow. 75

Nr oferty W001490

Liczba pokoi 4

Piętro / Liczba pięter 2 /3

Cena za m² 9990.00


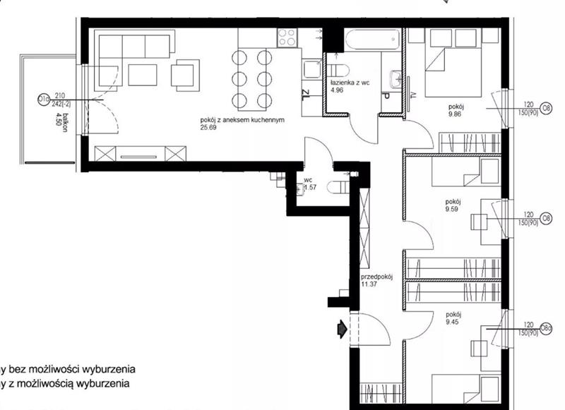
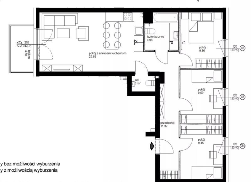
 Komfortowe 4-pokojowe mieszkanie 74,51 m² – Rotmanka | Funkcjonalny układ, balkon, możliwość zakupu miejsca w hali garażowej

Na sprzedaż oferuję przestronne i ustawne mieszkanie o powierzchni 74,51 m², położone na drugim piętrze nowoczesnego budynku w spokojnej i cenionej lokalizacji – Rotmanka, zaledwie kilka minut od Pruszcza Gdańskiego i Gdańska.

 Układ pomieszczeń:

  • salon z aneksem kuchennym, tworzący otwartą i przytulną przestrzeń dzienną,
  • trzy sypialnie, idealne dla rodziny lub osób potrzebujących dodatkowego pokoju do pracy,
  • łazienka z WC,
  • oddzielna toaleta,
  • przedpokój z miejscem na pojemną zabudowę.

 Ekspozycja:

Okna wychodzą na północ i południe, co zapewnia przyjemne doświetlenie wnętrz przez cały dzień.

 Dodatkowe atuty:

  • balkon o powierzchni 4,5 m² – idealny na poranną kawę lub chwilę relaksu,
  • możliwość zakupu miejsca w hali garażowej35 000 zł,
  • możliwość zakupu komórki lokatorskiej w cenie 3 000 zł/m²,
  • spokojne, rodzinne osiedle z pełną infrastrukturą w zasięgu ręki: sklepy, szkoła, przedszkole, komunikacja, tereny zielone.

 Stan:

Mieszkanie w nowoczesnym budynku, gotowe do urządzenia według własnego pomysłu. Doskonała propozycja dla rodzin, par lub osób ceniących komfort i dobrą lokalizację.

Załączone zdjęcia przedstawiają wizualizację możliwości aranżacji mieszkania i mają charakter poglądowy


Szczegóły

Ogólne warunki
Rynek: Pierwotny
Cena: 744 355 PLN
Pow. całkowita: 74.51 m²
Cena za m²: 9 990 PLN
Rok budowy: 2022
Liczba pokoi: 4
Piętro: 2
Liczba pięter: 3
Opis budynku
Rodzaj budynku: Blok mieszkalny
Stan budynku: Deweloperski
Bezpieczeństwo
Domofon: Tak
Standard
Rodzaj ogrzewania: C.o. miejskie
Balkon: Balkon
Internet: ---
Winda: Tak
Liczba poziomów: 1
Piwnica: ---
Pomieszczenia
Kuchnia: Aneks kuchenny
Liczba łazienek: 1
Liczba WC: 1
Parking/Garaż

Kalkulator opłat

Prowizja biura (brutto)
%
Opłaty notarialne
Opłata za wypisy aktu: 6,00 PLN za 1 stronę + 23% VAT

Agent

Wioletta Sąsiedzka

536916597
biuro@wmoris.pl