Oferty

Home / Oferty

Oferty


Cena 617 508 PLN
Cena 617 508 PLN
Cena 617 508 PLN
Powierzchnia 61
Powierzchnia 61
Pow. 61

Nr oferty W001485

Liczba pokoi 3

Piętro / Liczba pięter 1 /3

Cena za m² 10200.00


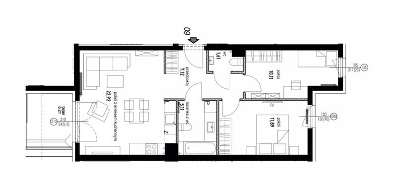
Na sprzedaż 3-pokojowe mieszkanie z dużym balkonem

Na sprzedaż nowe, 3-pokojowe mieszkanie o powierzchni 60,54 m², położone na trzecim piętrze w kameralnym, trzykondygnacyjnym budynku w Rotmance.
Mieszkanie jest w
stanie deweloperskim, gotowe do odbioru, co daje możliwość wykończenia według własnych upodobań.

Układ pomieszczeń:

  • salon z aneksem kuchennym,
  • dwie sypialnie,
  • łazienka,
  • przedpokój z miejscem na szafę w zabudowie.

Z salonu prowadzi wyjście na przestronny balkon o powierzchni 6,21 m², który stanowi doskonałe miejsce na poranną kawę lub relaks na świeżym powietrzu.

Wystawa okien: północ, południe

Mieszkanie jest jasne i przytulne, a poranne słońce pięknie doświetla wnętrza, tworząc przyjemną atmosferę na cały dzień.

Budynek:

  • niska, kameralna zabudowa – tylko trzy kondygnacje,
  • lokale usługowe na parterze,
  • spokojne i estetyczne otoczenie.

 Lokalizacja –Rotmanka Mieszkanie położone jest w bardzo dobrej lokalizacji, z bliskim dostępem do terenów rekreacyjnych, kościoła oraz sklepów i punktów usługowych.

Okolica zapewnia zarówno ciszę i wygodę codziennego życia, jak i szybki dojazd do centrum Pruszcza oraz Trójmiasta.

To idealne miejsce dla rodziny, pary lub osób ceniących spokój i komfort nowego budownictwa.

Załączone zdjęcia przedstawiają wizualizację możliwości aranżacji mieszkania i mają charakter poglądowy


Szczegóły

Ogólne warunki
Rynek: Pierwotny
Cena: 617 508 PLN
Pow. całkowita: 60.54 m²
Cena za m²: 10 200 PLN
Rok budowy: 2022
Liczba pokoi: 3
Piętro: 1
Liczba pięter: 3
Opis budynku
Rodzaj budynku: Blok mieszkalny
Stan budynku: Deweloperski
Bezpieczeństwo
Domofon: Tak
Standard
Rodzaj ogrzewania: C.o. miejskie
Balkon: Taras
Internet: Tak
Liczba poziomów: 1
Piwnica: ---
Pomieszczenia
Kuchnia: Aneks kuchenny
Liczba łazienek: 1
Liczba WC: 1
Parking/Garaż
Parking: Miejsce parkingowe

Kalkulator opłat

Prowizja biura (brutto)
%
Opłaty notarialne
Opłata za wypisy aktu: 6,00 PLN za 1 stronę + 23% VAT

Agent

Wioletta Sąsiedzka

536916597
biuro@wmoris.pl