Oferty

Home / Oferty

Oferty


Cena 669 528 PLN
Cena 669 528 PLN
Cena 669 528 PLN
Powierzchnia 66
Powierzchnia 66
Pow. 66

Nr oferty W001484

Liczba pokoi 3

Piętro / Liczba pięter 3 /3

Cena za m² 10200.00



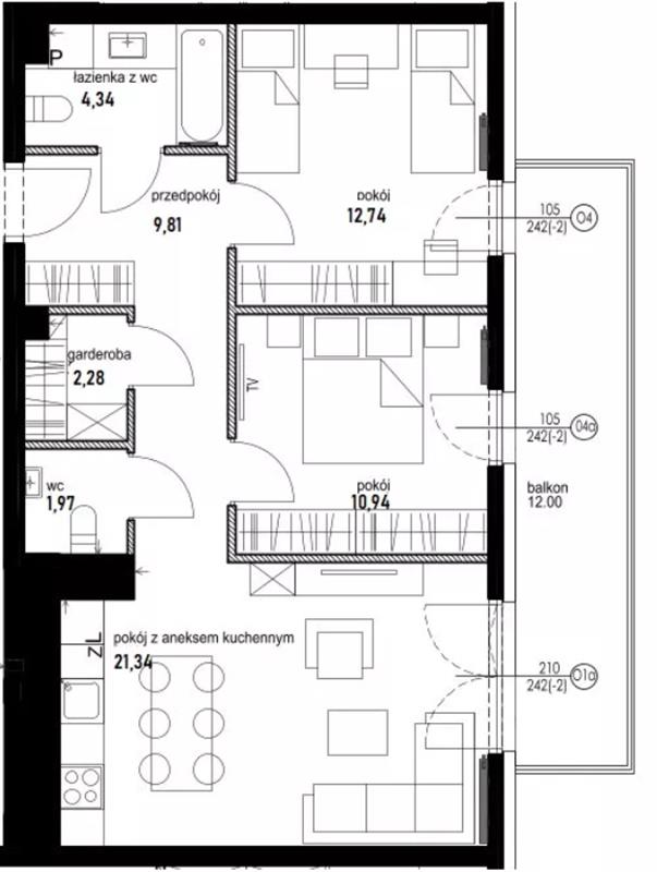
Na sprzedaż nowe, 3-pokojowe mieszkanie o powierzchni 65,64 m², położone na trzecim piętrze w kameralnym, trzykondygnacyjnym budynku w Rotmance

Mieszkanie jest w stanie deweloperskim, gotowe do odbioru, co daje możliwość wykończenia według własnych upodobań.

Układ pomieszczeń:

  • salon z aneksem kuchennym,
  • dwie sypialnie,
  • łazienka,
  • przedpokój z miejscem na szafę w zabudowie.

Z salonu prowadzi wyjście na przestronny balkon o powierzchni 12 m², który stanowi doskonałe miejsce na poranną kawę lub relaks na świeżym powietrzu.

Wystawa okien: wschodnia

Mieszkanie jest jasne i przytulne, a poranne słońce pięknie doświetla wnętrza, tworząc przyjemną atmosferę na cały dzień.

Budynek:

  • niska, kameralna zabudowa – tylko trzy kondygnacje,
  • lokale usługowe na parterze,
  • spokojne i estetyczne otoczenie.

 

Lokalizacja – Rotmanka

Mieszkanie położone jest w bardzo dobrej lokalizacji, z bliskim dostępem do terenów rekreacyjnych, kościoła oraz sklepów i punktów usługowych.
Okolica zapewnia zarówno
ciszę i wygodę codziennego życia, jak i szybki dojazd do centrum Pruszcza oraz Trójmiasta.

To idealne miejsce dla rodziny, pary lub osób ceniących spokój i komfort nowego budownictwa.

Wizualizacje przedstawiają propozycje aranżacji przestrzeni i mają wyłącznie charakter poglądowy.


Szczegóły

Ogólne warunki
Rynek: Pierwotny
Cena: 669 528 PLN
Pow. całkowita: 65.64 m²
Cena za m²: 10 200 PLN
Rok budowy: 2022
Liczba pokoi: 3
Piętro: 3
Liczba pięter: 3
Opis budynku
Rodzaj budynku: Blok mieszkalny
Stan budynku: Deweloperski
Bezpieczeństwo
Domofon: Tak
Standard
Rodzaj ogrzewania: C.o. miejskie
Balkon: (Brak informacji)
Internet: ---
Winda: Tak
Liczba poziomów: 1
Piwnica: ---
Pomieszczenia
Kuchnia: Aneks kuchenny
Parking/Garaż
Parking: Miejsce parkingowe

Kalkulator opłat

Prowizja biura (brutto)
%
Opłaty notarialne
Opłata za wypisy aktu: 6,00 PLN za 1 stronę + 23% VAT

Agent

Wioletta Sąsiedzka

536916597
biuro@wmoris.pl