Oferty

Home / Oferty

Oferty


Cena 366 690 PLN
Cena 366 690 PLN
Cena 366 690 PLN
Powierzchnia 53
Powierzchnia 53
Pow. 53

Nr oferty W001496

Liczba pokoi 2

Piętro / Liczba pięter 1 /3

Cena za m² 6966.00



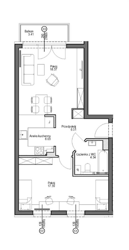
Przytulne 2-pokojowe mieszkanie 52,64 m² – Gniew | Kameralna zabudowa, blisko natury i Zamku Krzyżackiego


Na sprzedaż oferuję nowe mieszkanie w stanie deweloperskim o powierzchni 52,64 m², położone na drugim piętrze kameralnego budynku w malowniczym Gniewie – miejscu, gdzie historia łączy się z naturą i spokojem codziennego życia.

 

Układ pomieszczeń:

  • salon z aneksem kuchennym, tworzący jasną, otwartą przestrzeń dzienną,
  • sypialnia z miejscem na pojemną szafę,
  • łazienka,
  • przedpokój,
  • balkon, idealny na poranną kawę lub chwilę relaksu z widokiem na zieleń.


 Ekspozycja:

Okna wychodzą na północ, południe

 

Lokalizacja:

To miejsce stworzone dla osób ceniących ciszę, spokój i bliskość natury.
W najbliższej okolicy znajdują się:

  • przepiękne tereny rekreacyjne,
  • las i rzeka Wierzyca, idealne na spacery, bieganie lub wycieczki rowerowe,
  • zabytkowy Zamek Krzyżacki w Gniewie, będący wizytówką regionu,
  • w pobliżu sklepy, szkoła, przedszkole oraz wszystkie niezbędne punkty usługowe.


 Atuty inwestycji:

  • kameralna zabudowa zapewniająca spokój i prywatność,
  • naziemne miejsca parkingowe dla mieszkańców,
  • przyjazne, zielone otoczenie z dużą ilością przestrzeni wspólnej.


 Stan:

Mieszkanie jest w stanie deweloperskim, gotowe do odbioru – idealne do wykończenia według własnego gustu i stylu.

Wizualizacje przedstawiają propozycje aranżacji przestrzeni i mają wyłącznie charakter poglądowy.


 

Szczegóły

Ogólne warunki
Rynek: Pierwotny
Cena: 366 690 PLN
Pow. całkowita: 52.64 m²
Cena za m²: 6 966 PLN
Rok budowy: 2024
Liczba pokoi: 2
Piętro: 1
Liczba pięter: 3
Opis budynku
Rodzaj budynku: Blok mieszkalny
Stan budynku: Deweloperski
Bezpieczeństwo
Domofon: Tak
Standard
Rodzaj ogrzewania: C.o. miejskie
Balkon: Balkon 3.41 m²
Internet: ---
Winda: Nie
Liczba poziomów: 1
Piwnica: ---
Pomieszczenia
Kuchnia: Aneks kuchenny
Liczba łazienek: 1
Parking/Garaż
Parking: Przypisany do lokalu

Kalkulator opłat

Prowizja biura (brutto)
%
Opłaty notarialne
Opłata za wypisy aktu: 6,00 PLN za 1 stronę + 23% VAT

Agent

Wioletta Sąsiedzka

536916597
biuro@wmoris.pl