Oferty

Home / Oferty

Oferty


Cena 215 179 PLN
Cena 215 179 PLN
Cena 215 179 PLN
Powierzchnia 29
Powierzchnia 29
Pow. 29

Nr oferty W001497

Liczba pokoi 1

Piętro / Liczba pięter parter /3

Cena za m² 7343.99


Przytulne 1-pokojowe mieszkanie 29,30 m² – Gniew | Kameralna zabudowa, blisko natury i Zamku Krzyżackiego


Na sprzedaż oferuję nowe mieszkanie w stanie deweloperskim o powierzchni 29,30, położone na parterze kameralnego budynku w malowniczym Gniewie – miejscu, gdzie historia łączy się z naturą i spokojem codziennego życia.


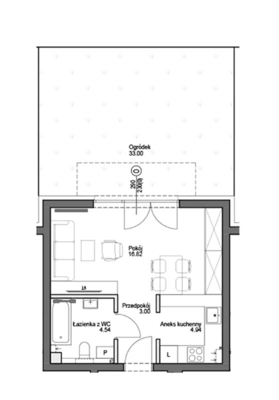
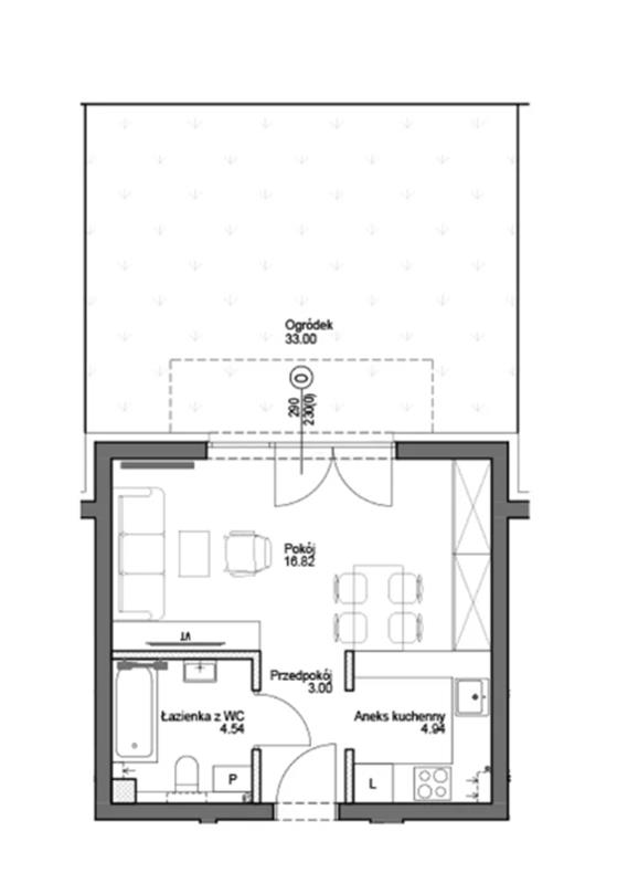
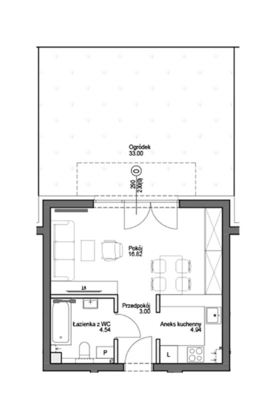
 Układ pomieszczeń:

  • pokójz aneksem kuchennym, tworzący jasną, otwartą przestrzeń dzienną,
  • łazienka,
  • przedpokój,
  • ogródek o powierzchni 9,80m2


 Ekspozycja:

Okna wychodzą na północ


 Lokalizacja:

To miejsce stworzone dla osób ceniących ciszę, spokój i bliskość natury.
W najbliższej okolicy znajdują się:

  • przepiękne tereny rekreacyjne,
  • las i rzeka Wierzyca, idealne na spacery, bieganie lub wycieczki rowerowe,
  • zabytkowy Zamek Krzyżacki w Gniewie, będący wizytówką regionu,
  • w pobliżu sklepy, szkoła, przedszkole oraz wszystkie niezbędne punkty usługowe.


 Atuty inwestycji:

  • kameralna zabudowa zapewniająca spokój i prywatność,
  • naziemne miejsca parkingowe dla mieszkańców,
  • przyjazne, zielone otoczenie z dużą ilością przestrzeni wspólnej.


 Stan:

Mieszkanie jest w stanie deweloperskim, gotowe do odbioru – idealne do wykończenia według własnego gustu i stylu.

 

Szczegóły

Ogólne warunki
Rynek: Pierwotny
Cena: 215 179 PLN
Pow. całkowita: 29.30 m²
Cena za m²: 7 344 PLN
Rok budowy: 2024
Liczba pokoi: 1
Piętro: parter
Liczba pięter: 3
Opis budynku
Rodzaj budynku: Blok mieszkalny
Stan budynku: Deweloperski
Bezpieczeństwo
Domofon: Tak
Standard
Rodzaj ogrzewania: C.o. miejskie
Balkon: (Brak informacji)
Internet: ---
Ogrodek: Tak
Winda: Tak
Liczba poziomów: 1
Piwnica: ---
Pomieszczenia
Kuchnia: Aneks kuchenny
Liczba łazienek: 1
Parking/Garaż

Kalkulator opłat

Prowizja biura (brutto)
%
Opłaty notarialne
Opłata za wypisy aktu: 6,00 PLN za 1 stronę + 23% VAT

Agent

Wioletta Sąsiedzka

536916597
biuro@wmoris.pl