Nr oferty W001490
Liczba pokoi 4
Piętro / Liczba pięter 2 /3
Cena za m² 9990.00
Komfortowe 4-pokojowe mieszkanie 74,51 m² – Rotmanka | Funkcjonalny układ, balkon, możliwość zakupu miejsca w hali garażowej
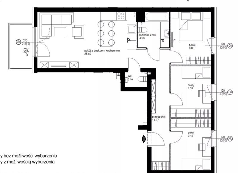
Na sprzedaż oferuję przestronne i ustawne mieszkanie o powierzchni 74,51 m², położone na drugim piętrze nowoczesnego budynku w spokojnej i cenionej lokalizacji – Rotmanka, zaledwie kilka minut od Pruszcza Gdańskiego i Gdańska.
Okna wychodzą na północ i południe, co zapewnia przyjemne doświetlenie wnętrz przez cały dzień.
Mieszkanie w nowoczesnym budynku, gotowe do urządzenia według własnego pomysłu. Doskonała propozycja dla rodzin, par lub osób ceniących komfort i dobrą lokalizację.
Załączone zdjęcia przedstawiają wizualizację możliwości aranżacji mieszkania i mają charakter poglądowy
| Ogólne warunki | |
|---|---|
| Rynek: | Pierwotny |
| Cena: | 744 355 PLN |
| Pow. całkowita: | 74.51 m² |
| Cena za m²: | 9 990 PLN |
| Rok budowy: | 2022 |
| Liczba pokoi: | 4 |
| Piętro: | 2 |
| Liczba pięter: | 3 |
| Opis budynku | |
| Rodzaj budynku: | Blok mieszkalny |
| Stan budynku: | Deweloperski |
| Bezpieczeństwo | |
| Domofon: | Tak |
| Standard | |
| Rodzaj ogrzewania: | C.o. miejskie |
| Balkon: | Balkon |
| Internet: | --- |
| Winda: | Tak |
| Liczba poziomów: | 1 |
| Piwnica: | --- |
| Pomieszczenia | |
| Kuchnia: | Aneks kuchenny |
| Liczba łazienek: | 1 |
| Liczba WC: | 1 |
| Parking/Garaż | |